Lyö yöllä lieskat kovat
kuuluu tuskan huudot
uloskäynnit lukitut
ikkunat rautaristikoilla tukitut
Ei pääse ulos
tie on tukos
Äänet hiljenee
totuus valkenee
Kauhein on tapahtunut
ihmiset ovat menehtyneet
Itsenäisen Suomen tuhoisin tulipalo, jossa on menehtynyt eniten ihmisiä.
Lapinlahden yössä leimusivat oranssin väriset, rätisevät ja korkeat liekit. Valveilla olevat Ihmiset huomasivat taivaanrannan loimuavan. Raskas savuverho täytti tienoon leviten laajalle alueelle. Paloautojen sireenit huusivat tuskaansa pimeässä iltayössä. Elettiin perjantain ja lauantain välistä yötä 22. – 23. huhtikuuta vuonna 1966. Lauantaiaamuna koko Lapinlahti heräsi järkyttävään ja traagiseen tapahtumaan. Suru ja järkytys ja ihmetys täyttivät pienen pohjoissavolaisen kylän kevään. Miten ja miksi tämmöinen kauhea tragedia oli tapahtunut, miten tämä on mahdollista?
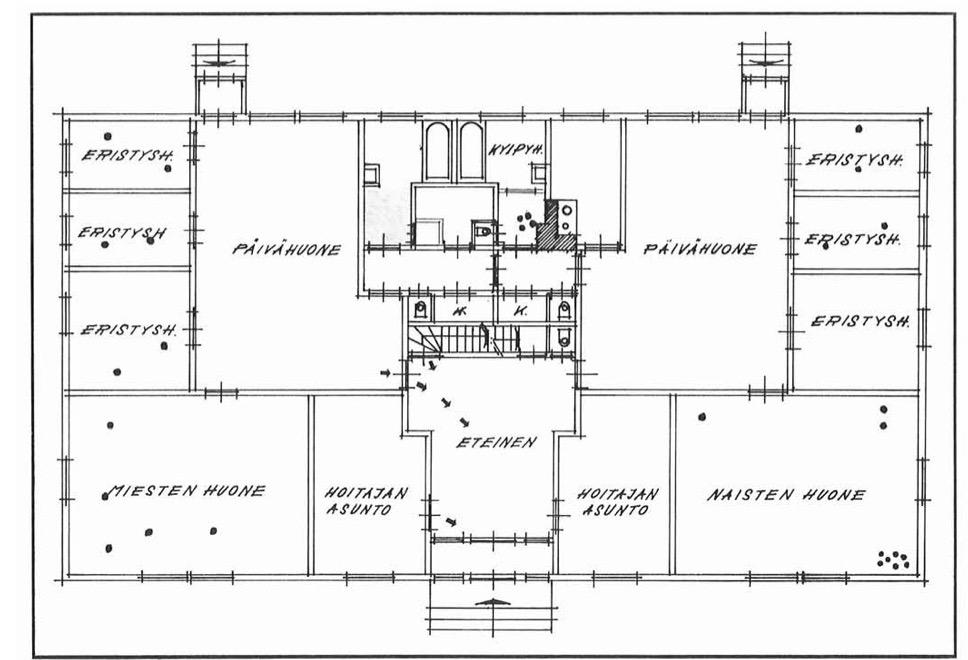
Lapinlahden kunnalliskodin rakennukset, joihin lukeutui erillinen mielisairaalaosasto, Koivulaksi kutsuttu rakennus, sijaitsi noin 1,5 km Lapinlahden keskustasta helppo- ja hyväkuntoisen tien päässä noin sadan metrin päässä Onkiveden rannasta. Vuonna 1932 rakennetussa, osittaisessa kaksikerroksisessa hirsirakennuksessa toimi kunnalliskodin mielisairaalaosasto, jonka alkuperäinen tarkoitus oli toimia huoltolaitoksena. Osastolla oli 28 vahvistettua hoitopaikkaa, mutta todellisuudessa siellä oli turman sattuessa 36 hoidokkia, joista huolehti vajaa henkilökunta, eli kaksi hoitajaa ja keittäjä. Lain mukaan potilaista olisi täytynyt huolehtia kuusi hoitajaa. Rakennuksen alakerrassa olivat tilat hoidokeille sekä hoitohenkilöstön asunnot pääsisäänkäynnin molemmilla puolilla. Keskellä olivat sosiaalitilat, jotka jakoivat hoitohuoneiston naisten ja miesten osastoiksi. Eristyshuoneet olivat rakennuksen molemmissa päädyissä. Rakennuksen sisätilat olivat ahtaat, sokkeloiset, ovet lukittuja ja ikkunat raudoitettuja. Rakennuksen toisessa kerroksessa olivat päivystyshuone ja vielä yksi henkilökunnan asunto. Varapoistumistiet johtivat ulos sisäänkäynnin talon vastakkaiselta puolelta päivähuoneista.

Alla olevassa kuvassa vihreän ympyrän alueella on sijainnut palanut rakennus sekä kunnalliskodin muut rakennukset ja punaisella on merkitty oikealla olevassa kuvassa näkyy paikalla oleva vanha aitta, joka on kuulunut kunnalliskodin rakennuksiin.
Paikan on selvittänyt ystäväni Katja, hän asuu Lapinlahdelle, joten kiitos hänelle.


Huhtikuisena yönä palohälytys tuli paloasemalle klo 23.25. Rakennuksessa asuivat potilaiden lisäksi yksi hoitaja, kaksi hänen tytärtään ja äiti sekä keittäjä. He kaikki olivat palon aikana paikalla samoin kuin yövuoron hoitaja, joka oli nukkumassa yläkerrassa. He selvisivät tulipalosta. Myös alakerran asukeista seitsemän miestä pelastautui juoksemalla liekkimereksi muodostuneen käytävän läpi pihalle.

Kuva, Pelastustieto, Palontorjunta 4/1966.
Hoidokkien pelastautuminen oli käytännössä mahdotonta. Palon ensimmäisenä havaitsi miesten päivähuoneessa nukkunut hoidokki, joka oli herännyt savun hajuun, joka tuli tupakkahuoneen luota. Hän herätti muita hoidokkeja miesten joukkomajoitushuoneessa. Ulko-ovien ollessa lukittuina ja heidän selvitettyään niiden olevan aukeattomina, he alkoivat särkeä raudoitettuja ikkunoita käyttäen apunaan muun muassa rautasänkyjä. Savu ja tuli saapui päivähuoneeseen. Hoitohenkilökunta heräsi jyskyttäviin ääniin. Päivähuoneesta kohti uloskäynnin ovea vielä kerran rynnänneet mieshoidokit pääsivät ulos, kun seinän takana nukkumassa ollut hoitaja avasi samalla oven, joka aiheutti hapen pääsyn päivähuoneen, josta tuli sai lisää voimaa. Uloskäytävän puoleinen osa päiväsalia humahti tuleen. Vain suunnaton pako pelasti käytävään päässeet seitsemän mieshoidokkia ja henkilökuntaan kuuluvat ulos palavasta talosta. Palovammoitta pelastuneet hoidokit eivät päässeet, joka kertoo humahduksen voimakkuudesta. Kaksi heistä kuoli myöhemmin vammoihinsa sairaalassa. Yläkerrassa nukkunut hoitaja pelastautui juoksemalla portaita alas liekkien läpi ulos. Laitoksen emäntä asui yläkerran asunnossa, hänen onnistui pelastautua ikkunan kautta pääsisäänkäynnin verannan katolle ja sieltä pudottautumalla maahan. Hän loukkaantui murtaen lonkkansa.
Palo levisi nopeasti avoimiksi jääneiden ovien ja rikottujen ikkunoiden kautta päässeiden ilmavirtojen vuoksi sekä palavat verhoukset sisäpuolella. Palon leviämistä vauhdittivat myös lukittujen ovien yläpuoliset ikkunat. Hirsiseinien päälle oli laitettu lattiasta 140 cm korkeuteen pahvi ja yläosassa oli pinkopahvi.
Sadan metrin päässä mielisairaalaosastosta oli johtajattaren asunto, josta soitto palosta saatiin eteenpäin. Läheisestä kunnalliskodin sairasosastolta hoitaja juoksi palavan rakennuksen etupuolelle katsomaan pystyykö hoidettavia saamaan sieltä ulos. Todeten tämän mahdottomaksi, hän siirtyi rakennuksen takapuolelle kokeilemaan aukaista mukanaan olevalla yleisavaimella miesten osaston varauloskäynnin ovet, jotka eivät tällä avaimella auenneet. Hän kiiruhti hakemaan etupuolella olevalta mielisairaanhoitajalta toista avainta ja tällä avaimella hän saikin ovat auki, mutta sisältä ei tullut ketään ulos. Henkilökunta yritti vielä aukoa ikkunoita ja ovia, niissä kuitenkaan onnistumatta.

Palokunnan saapuessa nopeasti paikalle, näky oli jo lohduton. Pääsisäänkäynti oli tulessa ja tuli tunkeutui katosta läpi. Sisälle jääneiden jyskytykset kuuluivat ulos saakka, heidän hakatessaan rautasängyillä kalteri-ikkunoita. Äänet kuitenkin kohta hiljenivät. Pelastusta yritettiin vielä sisätiloissa, mutta rakennuksesta ei enää ketään voitu pelastaa.
Palossa kuoli 29 henkilöä, joiden pahoin palaneet ruumiit löydettiin myöhemmin palopaikalta. Sairaalassa menehtyi kaksi henkilöä saamiinsa vammoihin. Lapinlahden kunnalliskodin tulipalo on Suomen historian eniten kuolonuhreja vaatinut tulipalo.

Palo oli tuhoisa ja kaikkien lähiseudun palokuntien avusta huolimatta jäljelle jäi vain mustunut hirsikasa, jonka keskeltä törrötti pystyyn jäänyt savupiippu. Palon epäillään saaneen alkunsa rakennuksen keskellä olevasta tupakkahuoneesta. Tuohon aikaan oli tupakointi sallittua sisätiloissa ja tiedettiin, hoidokkien käyvän yöllä tupakalla. Tupakkatarvikkeita tulitikkuineen ei takavarikoitu yöksi eikä päiväksi.
Kaksi pyromaania oli ollut hoidossa palon aikana, mutta heidät rajattiin pois, koska todisteita heitä vastaan ei ollut ja heidänkin kohtalonaan oli menehtyminen tulipalossa.
Tulipaloa ei koskaan viety oikeuteen, sillä poliisin tutkinnoissa ei selvinnyt mitään eikä ketään ketä olisi voitu syyttää tulipalosta. Poliisi hautasi jutun selvittämättömänä.
Rakennuksen paloturvallisuuslaitteet oli tutkittu edellis keväisessä palotarkastuksessa, joten ne olivat kunnossa ja henkilökunnalle oli tehty paloharjoitukset, muttei mielisairaalaosastolla. Epäiltiin tupakkahuoneessa olevan palokatkaisimen olleen epäkunnossa, mutta palotarkastuksessa se oli todettu toimivaksi. Palopäällikkö epäili vintillä olleiden avonaisten tilojen vauhdittaneen palon voimakkuutta ja räjähdysmäistä leviämistä. Kaksi kertaa aiemminkin palokunta oli käynyt sammuttamassa rakennuksessa tulipaloja ja yksi niistä oli ollut tupakkahuoneessa. Muitakin pienempiä paloja rakennuksessa oli ollut, mutta henkilökunta oli ne onnistunut itse sammuttamaan.
Kuten olettaa voidaan lehdistö oli paikalla heti palon jälkeen. HS kertoi haastatelleensa lapinlahtelaista miestä, joka menetti tulipalossa sisarensa ja veljensä.
Veli ei ollut kuulunut mielisairaalaosastolle, vaan joutui olemaan siellä muiden osastojen ahtauden vuoksi. Hän oli tullut talveksi vanhainkotiin, oman kotinsa Lapinlahden syrjäkylällä olleen liian kylmä ja hatara kovana pakkastalvena.
Sisko oli rippikouluikäisenä vuonna 1918 sairastunut espanjantautiin, jonka jälkitautina tullut aivokalvontulehdus johti parantumattomaan mielisairauteen. Sisko oli asunut vanhainkodissa yli 30 vuotta.( Iltasanomat 23.4.2018, Vesa Kovanen)
Helsingin Sanomien toimittajat Mirja Karjalainen ja Eino Leino haastattelivat tulipalosta selvinneitä, joista yksi kertoi ”Kuka siinä hyräkässä kompastui, se paloi pahiten”, yksi kertoi.
”Muiden kohtaloa ei siinä paljon ehtinyt seurata, sen vain, kuinka ensin juostiin yli tulen ja sitten ulkona routainen maa poltti kärventyneitä jalkapohjia tuskaa tuottaen”, selviytyjä kertasi.
( Iltasanomat 23.4.2018, Vesa Kovanen)

Rakennus todettiin olleen käyttötarkoitukseensa sopimaton. Tämän oli paikallinen sosiaalihuollon piiritarkastaja sanoneen lausunnossaan jo vuosia aiemmin. Rakennus oli vanhanaikainen ja huonokuntoinen. Palonarkoja erityisesti olivat sisäseinien palava-aineiset verhoukset. Rakennusta ei oltu kunnostettu, sillä valmistumassa oli Iisalmeen mielisairaala, jonne lapinlahtelaiset potilaat oli tarkoitus siirtää seuraavana vuonna.
Tulipalo sai silloisen sosiaaliministeriön tutkimaan muita Suomessa olevia mielisairaalaosastoja. Todettiin noin 60 vanhainkodin mielisairaalaosaston toimivan samankaltaisissa huonokuntoisissa puurakennuksissa.
Silloinen Kuopion läänin vt maaherra Eero Mäntylä kävi myös välittömästi onnettomuuspaikalla katsomassa surullista näkyä; jälkisammutustöissä palomiehet olivat jäähdyttelemässä mustuneita rauniota. Mustiksi vääntyneet rautasängyt ja ihmisten palaneet jäännökset olivat lohduttomasti raunioissa.
Miksi näin ja mikä syy? Yksittäistä syytä ei varmaan täysin ole havaittavissa. Lainsäädäntä oli puutteellinen silloin ja valtionapu vaillinainen. Katsottiin, ettei ole se ollut Lapinlahden kunnan syy, että epäpätevät hoitajat olivat vajaalla henkilökunnalla hoitamassa hoidokkeja kunnalliskodin yhdessä erillisessä, ahtaassa ja sokkeloisessa rakennuksessa. Lapinlahti oli ollut jo kymmenen vuotta hankkeessa, että Pohjois-Savoon saataisiin uusi B-mielisairaala, mutta valtio ei ollut pystynyt maksamaan osuuttaan tässä hankkeessa. Yksittäisten pienten kuntien oli mahdotonta vastata yksinään näin suuresta hankkeesta. Tällöin oli kuitenkin valmistumassa jo edellä mainittu Iisalmen mielisairaala. Valitettavasti tapahtui kauhein onnettomuus, mitä voi vain kuvitella. Liian moni henkilö joutui kokemaan kauhistuttavan ja järkyttävän tavan poistua tästä maailmasta.

Kuva, Pelastustieto, Palontorjunta 4/1966.
Palossa kuolleista 31 vainajasta 27 heistä haudattiin yhteishautaan Lapinlahden vanhalle hautausmaalle 8. toukokuuta 1966 Lapinlahden kirkkoa vastapäätä. Vainajat kuljettiin paikalle kuorma-autojen lavoilla ja paikalle oli saapunut paljon saattoväkeä. Hautausmaalle on pystytetty muistomerkki kunnalliskodin palon uhreille. Muistomerkin patsas on kopio Eemil Halosen vuonna 1934 Helsingin Hietaniemen hautausmaalle tekemästä Ernst Nevanlinnan hautamuistomerkistä.
Lähde
Wikipedia
Pelastustieto, Palontorjunta 4/1966
Helsingin Sanomat
Iltasanomat 23.42018
Yle 13.10.2009
Erityismainintana kiitos Pelatustiedon toimitukselle kuvien käytöstä!
Kuvituskuvat ©Reiskat ja Reppu. Kaikki oikeudet pidätetään.